Beschreibung
Exposé: Luxusvilla mit Meerblick in Rojales – 5 Schlafzimmer, modernes Design
Diese architektonisch herausragende Luxusvilla in Rojales verbindet mediterranen Lifestyle mit atemberaubenden Aussichten auf Guardamar und das Mittelmeer. Das nachhaltige Design, hochwertige Ausführungen und die einzigartige Lage machen diese Villa zu einem der exklusivsten Objekte an der Costa Blanca.
Highlights
-
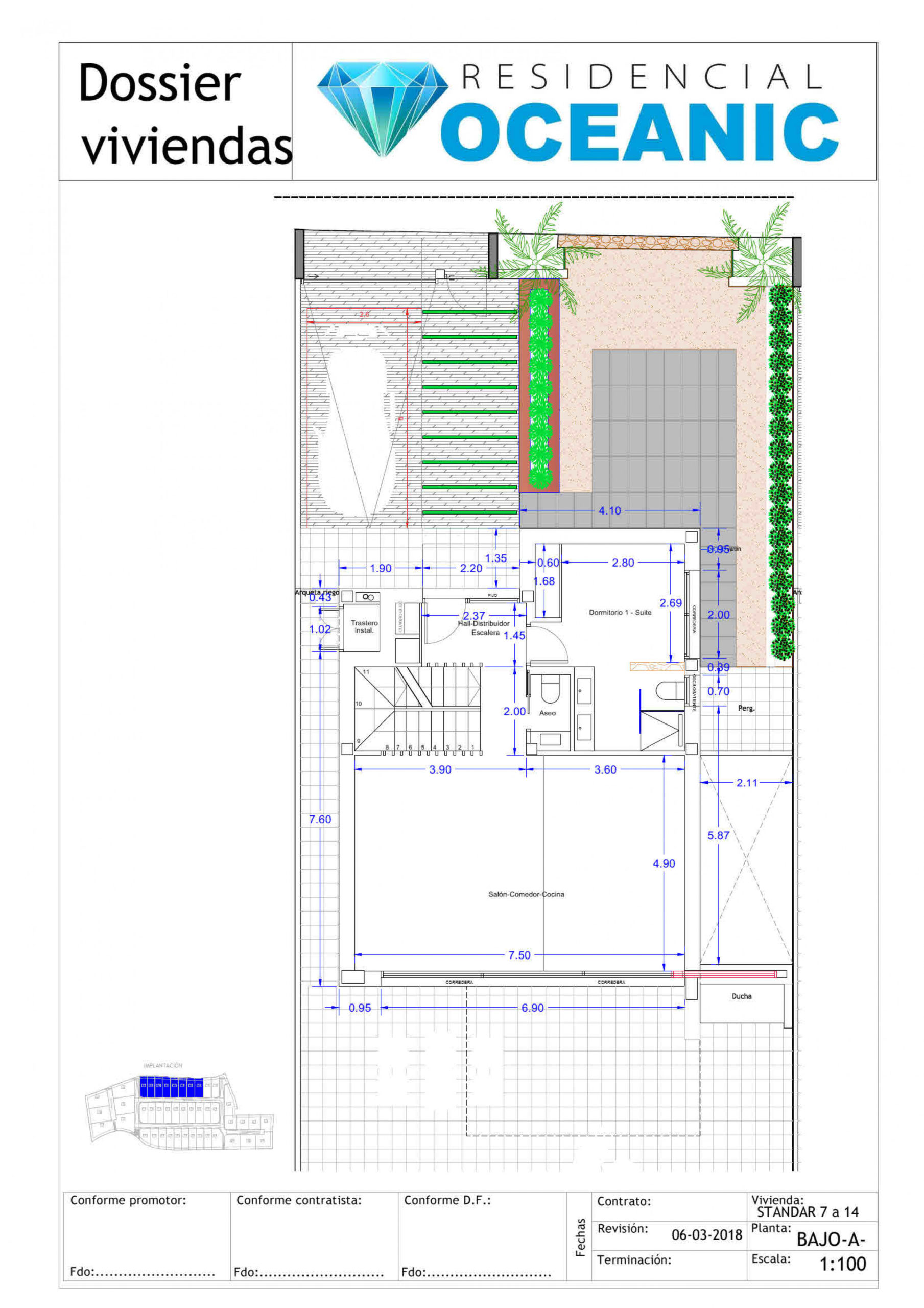
Fünf Schlafzimmer, alle mit eigenem Bad und Zugang zu Terrassen
-
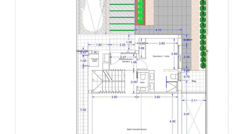
Infinity-Pool mit Panoramablick auf die Natur von Rojales
-
Offener Wohn- und Küchenbereich mit Zugang zur Sonnenterrasse
-
Nachhaltige Bauweise und hochwertige Materialien
-
Voll ausgestattete Küche: Siemens Kochfeld, Dunstabzug, Kühlschrank, Geschirrspüler, Kombi-Backofen/Mikrowelle
-
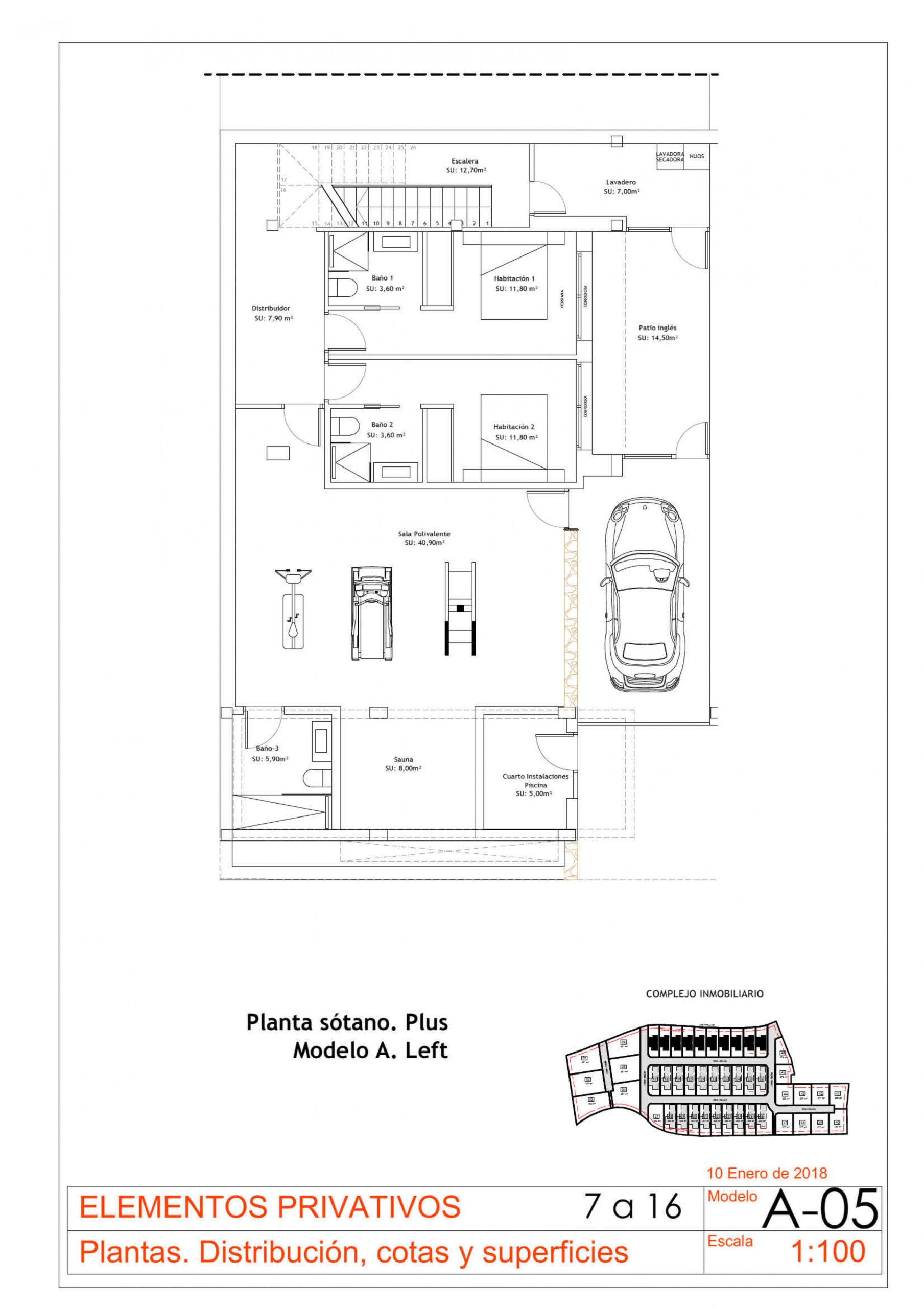
Privater Wellnessbereich: Sauna, Spielzimmer und Untergeschoss mit englischem Patio
Tipp: Terrassen und Infinity-Pool bieten perfekte Möglichkeiten für Sonnenbäder und entspannte Abende mit Blick auf die Umgebung.
Lage
Die Villa liegt in unmittelbarer Nähe zu Quesada und Rojales, beide Orte bieten alle wichtigen Annehmlichkeiten wie Einkaufsmöglichkeiten, Restaurants und Dienstleistungen. Die Strände von Guardamar sind leicht erreichbar, sodass sich Natur, Meer und städtische Infrastruktur ideal verbinden.
Vorteil: Ruhige Lage, dennoch fußläufig alle notwendigen Einrichtungen erreichbar.
Wohnanlage
Die Villa gehört zum exklusiven Residential Oceanic Komplex, der für seine nachhaltigen und hochwertigen Villen bekannt ist. Die Anlage bietet Privatsphäre, moderne Infrastruktur und direkte Zugänge zu den Grünflächen der Umgebung.
Hinweis: Kombination aus Natur, Luxus und durchdachtem Wohnkomfort für anspruchsvolle Käufer.
Ausstattung & Extras
-
Klimaanlage und Fußbodenheizung in allen Bereichen
-
Sauna und Spielzimmer im Untergeschoss
-
Elegante Terrassen und Infinity-Pool
-
Garage und private Zufahrt
-
Hochwertige Küchengeräte und moderne Haushaltsgeräte
-
Nachhaltige und energieeffiziente Bauweise
Tipp: Hochwertige Ausstattung und nachhaltiges Design sorgen für langfristigen Wohnkomfort und geringen Wartungsaufwand.
Schlafbereich
-
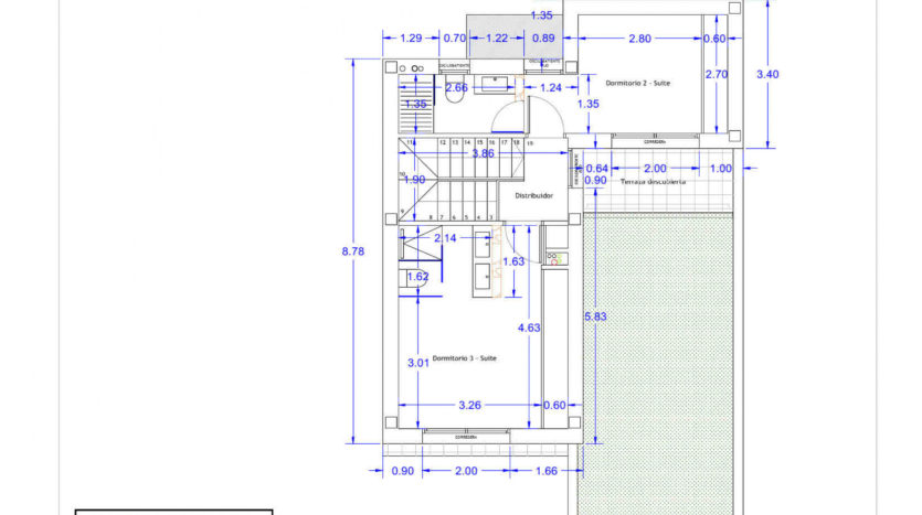
Fünf großzügige Schlafzimmer, alle mit eigenem Bad
-
Terrassenanschluss in allen Schlafzimmern mit Blick auf die Sierra del Recorral
-
Flexibel nutzbar für Familie, Gäste oder Homeoffice
Vorteil: Optimale Privatsphäre und luxuriöser Komfort in allen Schlafräumen.
Raumaufteilung
-
Erdgeschoss: Offener Wohn-/Essbereich, Küche, Schlafzimmer mit En-Suite, Gäste-WC, Terrasse mit Infinity-Pool
-
Obergeschoss: Zwei Schlafzimmer mit En-Suite
-
Untergeschoss: Zwei Schlafzimmer mit En-Suite, englischer Patio, großes Spielzimmer, Sauna, Bad/Dusche, Waschküche, Garage
Hinweis: Offenes Raumkonzept kombiniert mit separaten Rückzugsbereichen schafft eine perfekte Balance zwischen Gemeinschaft und Privatsphäre.
Fazit:
Diese exklusive Villa in Rojales bietet luxuriöses Wohnen mit einzigartigem Meerblick, nachhaltiger Bauweise und hochwertigen Ausstattungsmerkmalen. Ideal für Familien, Investoren oder Käufer, die Ruhe, Natur und mediterranen Lifestyle auf höchstem Niveau suchen.
- Kapital und Zinsen
- Grundsteuer pro Monat in EUR
- Gemeinschaftskosten





























